SYCAMORE
APARTMENTS
SYCAMORE
APARTMENTS
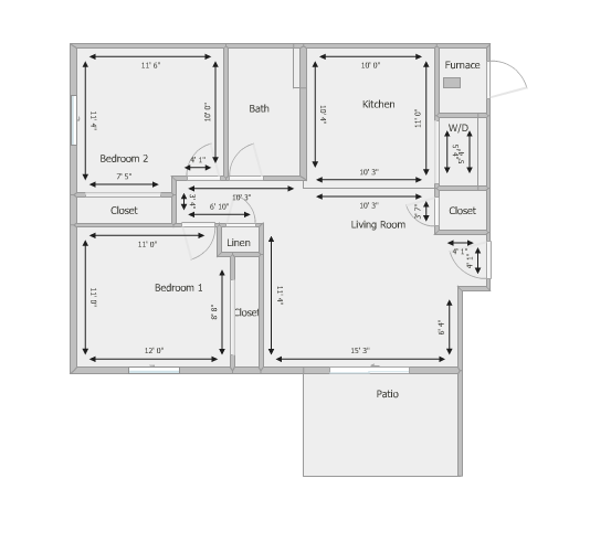
The Sycamore Apartments are located on Kountry Lane, south of the Sycamore Mall in Iowa City, across from the Soccer Fields. The units are 2 bed, 1 bath units.
AMENITIES
- Free Parking
- On-Site Laundry in each building
- Deck or Patio
- Washer/Dryer hookups in most units (not available in #2 units due to common area laundry)
- In unit washer/dryer in select units for an additional $50/month
- Tenant pays all utilities, rent does include 100MB Fiber Internet
- Connected to the City walking and biking trails
- Garages available for $90/month (month to month lease)
CONTACT
TERMS
Pets allowed (including dogs) for a one time, non-refundable pet fee of $300 and $40/month (not per pet).
Maximum of 3 pets per unit.










