THE OVERLOOK
APARTMENTS
THE OVERLOOK
APARTMENTS
The Overlook Apartments are located on Shire Lane in Saddlebrook.
AMENITIES
- ​Access to community Clubhouse
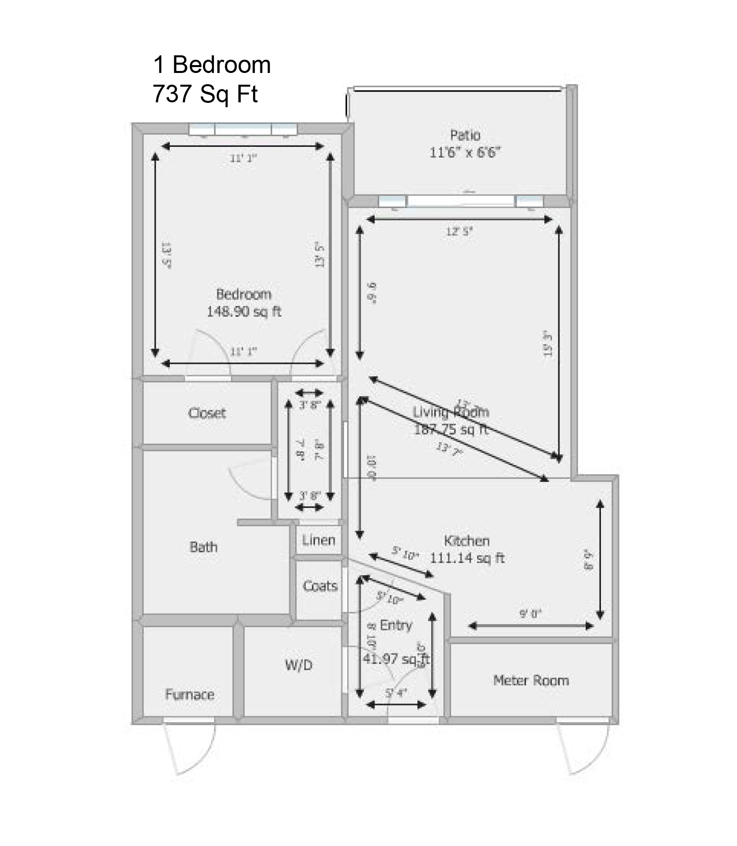
- Units include washer/dryers or washer/dryer hookups
- Tenants pay all utilities, 100MB Fiber Internet is included in the rent
- All units include deck or patio
- Secured Entrance
- Free parking
CONTACT
TERMS
Dogs Now Allowed (breed restrictions and additional fee)
Garages available for $80/month











