928 Long Dr, Solon, IA 52333
928 Long Dr, Solon, IA 52333
4 Bedroom Home in Solon
Luxury 4-Bedroom Home for Rent with Stunning Golf Course Views 3,249 Sq Ft | 3-Car Garage | Prime Solon Location
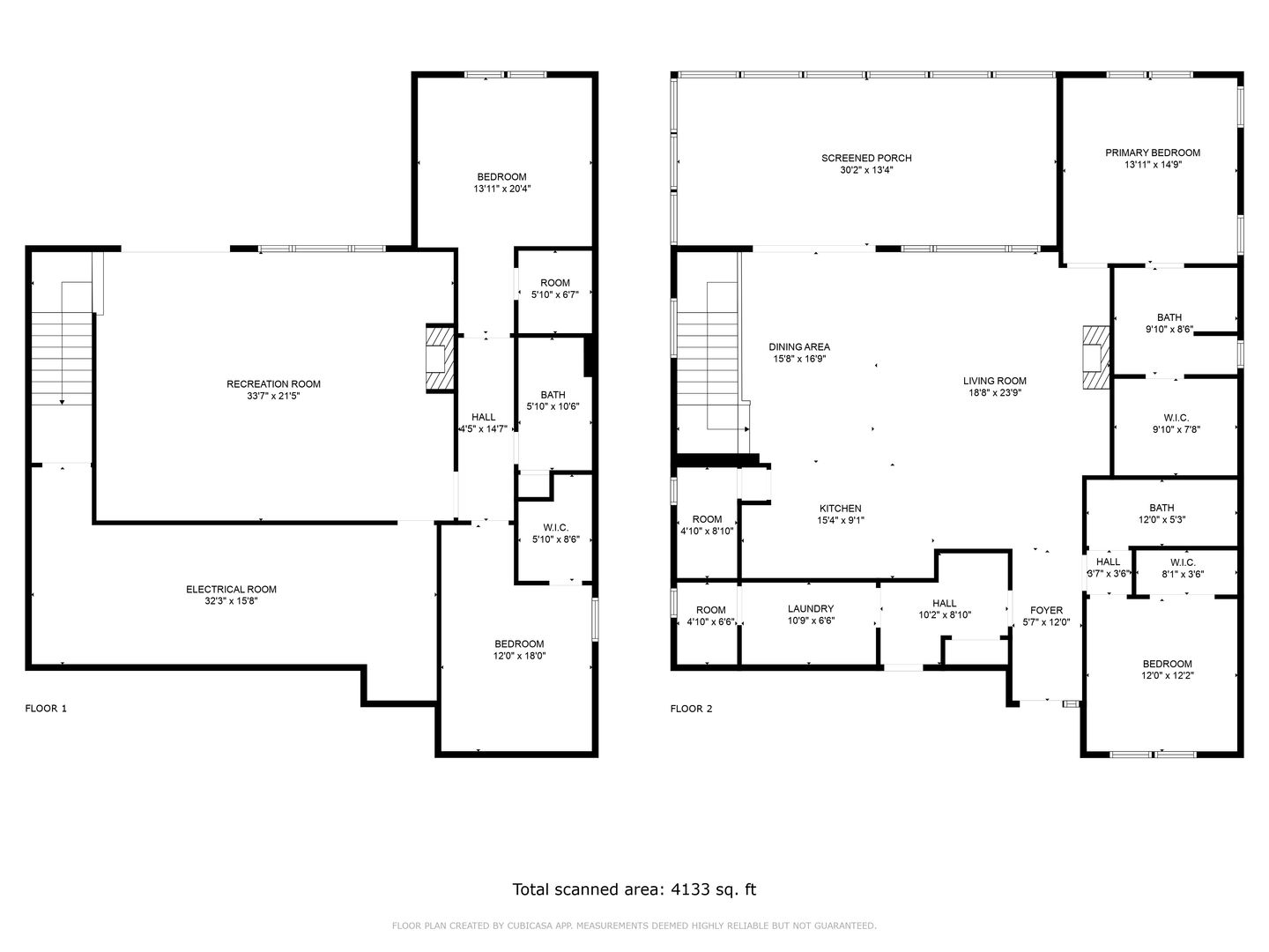
Now available for rent this beautifully designed 4-bedroom, 3-bathroom home offers the perfect blend of space, comfort, and luxury, all with uninterrupted views of the Saddleback Golf Course right in your backyard.
Bedrooms: 4
Bathrooms: 3
Living Space: 3,249 sq ft
Garage: 3-car attached
Location: Overlooking Saddleback Golf Course
Interior Highlights:
Spacious main-floor living area with abundant natural light
Two bedrooms on the main level, including a primary suite with heated bathroom floors, tiled walk-in shower, and large walk-in closet
Chef's kitchen with modern finishes and ample storage
Finished walk-out basement featuring a large family room, wet bar, two additional bedrooms, and a full bath
Private lower-level patio for extra outdoor space
Outdoor Features:
Screened-in deck with panoramic golf course views perfect for relaxing or entertaining
Professionally landscaped yard with direct views of the Saddleback Golf Course
Whether you're hosting friends or enjoying a peaceful evening at home, this property has it all style, function, and a stunning setting.
Now available for rent this beautifully designed 4-bedroom, 3-bathroom home offers the perfect blend of space, comfort, and luxury, all with uninterrupted views of the Saddleback Golf Course right in your backyard.
Bedrooms: 4
Bathrooms: 3
Living Space: 3,249 sq ft
Garage: 3-car attached
Location: Overlooking Saddleback Golf Course
Interior Highlights:
Spacious main-floor living area with abundant natural light
Two bedrooms on the main level, including a primary suite with heated bathroom floors, tiled walk-in shower, and large walk-in closet
Chef's kitchen with modern finishes and ample storage
Finished walk-out basement featuring a large family room, wet bar, two additional bedrooms, and a full bath
Private lower-level patio for extra outdoor space
Outdoor Features:
Screened-in deck with panoramic golf course views perfect for relaxing or entertaining
Professionally landscaped yard with direct views of the Saddleback Golf Course
Whether you're hosting friends or enjoying a peaceful evening at home, this property has it all style, function, and a stunning setting.
Contact us:







































